مشروع

مخططات تنفيذية لمباني المعدات الأمنية في القوات الجوية

نظرة عامة على المشروع

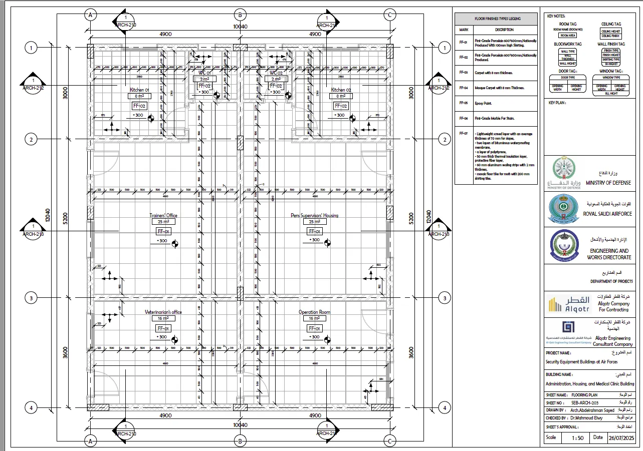
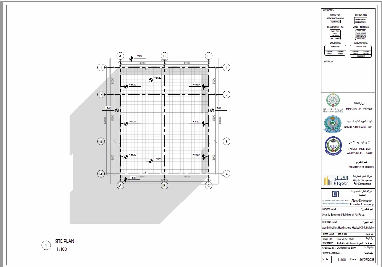
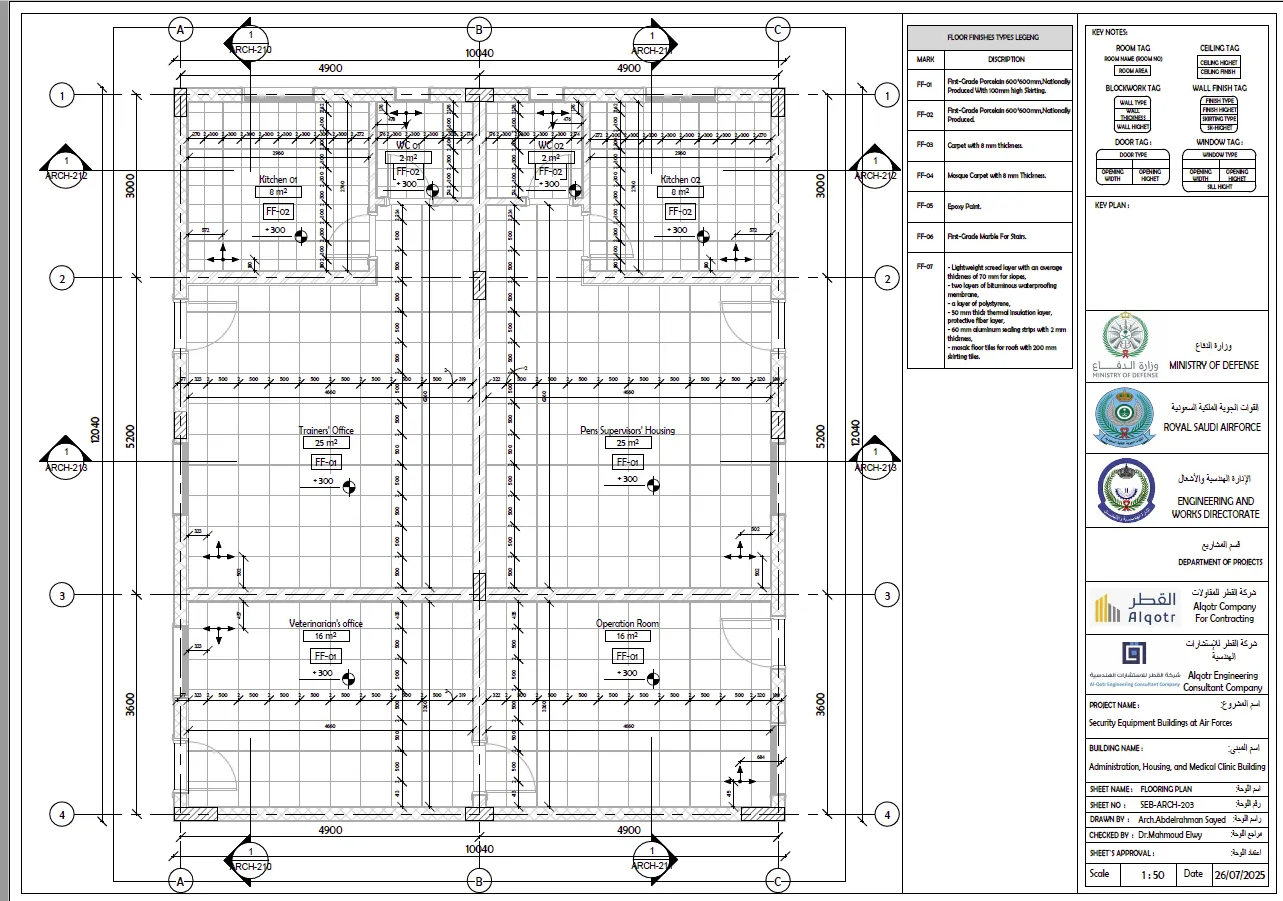
مخططات تنفيذية لمباني المعدات الأمنية في القوات الجوية تشمل الأعمال المعمارية والإنشائية والكهربائية والميكانيكية وخدمات حصر الكميات.

مشاريع تعكس خبرة متراكمة

مشاريع أخرى ضمن محفظة أعمالنا

تمثل مشاريعنا سجلًا عمليًا لخبراتنا في دعم الجهات الحكومية وشبة الحكومية والقطاع الخاص من خلال حلول تخطيطية وهندسية متكاملة تسهم في تحقيق أهداف التنمية المستدامة.