مشروع

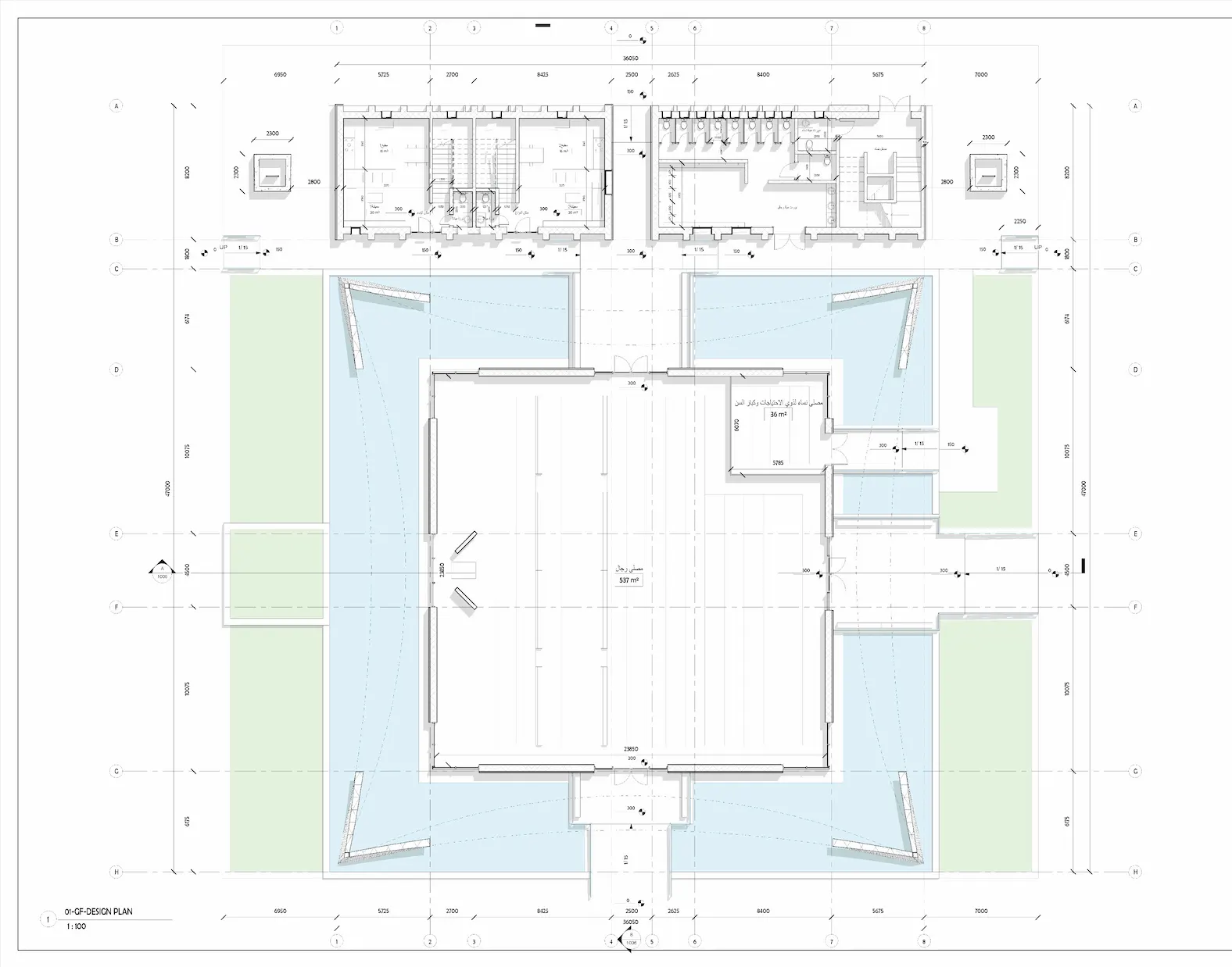
مخططات تنفيذية لمسجد عائشة في حي حطين

نظرة عامة على المشروع

مخططات تنفيذية لمسجد عائشة في حي حطين بمدينة الرياض، صُمم بهوية معاصرة تعكس الطابع الروحي والمعماري للمنطقة، وتشمل الأعمال المعمارية والإنشائية والكهربائية والميكانيكية وخدمات حصر الكميات.

مشاريع تعكس خبرة متراكمة

مشاريع أخرى ضمن محفظة أعمالنا

تمثل مشاريعنا سجلًا عمليًا لخبراتنا في دعم الجهات الحكومية وشبة الحكومية والقطاع الخاص من خلال حلول تخطيطية وهندسية متكاملة تسهم في تحقيق أهداف التنمية المستدامة.